| Titolo | Tipologia | Prezzo | Camere da letto | Bagni | Superficie della proprietà | Data di disponibilità |
|---|---|---|---|---|---|---|
| CHIAVI IN MANO - OTTIMA OPPORTUNITA' - PORTUENSE VIGNA PIA Appartamento Arredato 43 mq | APPARTAMENTO | €135.000,00 | 1 | 1 | 43 m² | IMMEDIATA |
QUESTO IMMOBILE E’ STATO VENDUTO
CONTATTACI SE INTERESSATO A SOLUZIONI SIMILI
_______________________________________________________________________________________________
La RES Immobiliare
propone in VENDITA a ROMA in zona Portuense Vigna Pia, a pochi passi dalle due graziose piazzette del quartiere e più precisamente
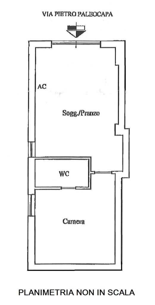
in via Pietro PALEOCAPA adiacente piazza G. Mengarini
OPPORTUNITA’ IMPERDIBILE sia come ABITAZIONE PRINCIPALE che come SECONDA CASA / PIED – A’ – TERRE a ROMA, oppure COME STUDIO PROFESSIONALE O UFFICIO, o come INVESTIMENTO per AFFITTI A BREVE O A LUNGO TERMINE.
APPARTAMENTO CHIAVI IN MANO PERFETTO STATO GIA’ ARREDATO E PRONTO PER ESSERE ABITATO
L’appartamento di 43 MQ è posto al PIANO TERRA di una palazzina di 5 in cortina ed è composto da:
AMPIO SOGGIORNO con CUCINA A VISTA – CAMERA DA LETTO MATRIMONIALE – BAGNO CON DOCCIA.
Dispone di:
– Condizionatori a pompa di calore Caldo-Freddo in Soggiorno e Camera;
– Infissi in PVC con DOPPI VETRI;
– Pavimentazione: CERAMICA UNIFORME IN TUTTI GLI AMBIENTI con grazioso INTARSIO IN SOGGIORNO.
I punti di forza di questo appartamento sono:
Un’OPPORTUNITA’ che unisce PRATICITA’ E COMFORT nella splendida città di Roma!
Si trova in un contesto RESIDENZIALE E TRANQUILLO ma nello stesso tempo in una ZONA CENTRALE, ben collegata dal trasporto pubblico e circondata da tutti i servizi utili e necessari e a portata di mano.
Nei pressi della Scuola Americana Internazionale “Ambrit School”, del complesso ospedaliero San Camillo Forlanini e della nuova Caserma dei Carabinieri.
A 15 minuti a piedi dalla Gianicolense, da viale Marconi, dalla stazione di Trastevere, da Villa Bonelli e stazione di Villa Bonelli – Magliana.
Vicinissima inoltre all’Università ROMA – TRE.
Ape G Euro 135.000,00
INFO E CONTATTI
RES IMMOBILIARE
via G. Mengarini 9/11